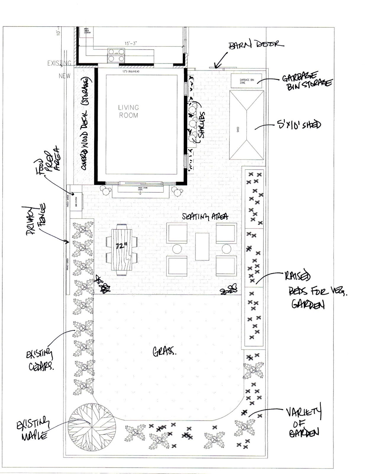
What a spring season it has been. I do apologize for my absence. I have been slaving away in my yard at any chance I can get. Well, that and it’s wedding season, so it’s a balance of life in a yard renovation and socializing with those I love. As you can remember from a few weeks back (if not, click HERE for a refresher), Nick and I started to give some much needed love to the yard. Three full weekends of hard work, with the help of friends and brothers, we have made some head way! As promised, here is the outdoor floor plan for the yard…
The plan is to have some hardscaping, to extend out living space from the house, mixed in with natural elements to soften the space. I am all about maintenance free living, so we are trying to create a space that allows us to enjoy it more than maintain it. There will be a mixture of raised beds for veggies, potted plants and traditional gardens for the perennials. You can see, this is no small feat (like any project we have taken on in this place). Nick will be building a fence to create a division between the neighbours and give back the privacy all of us are craving.
First on the “to-do-list” is grading the soil, setting the foundation for the interlocking patio and digging the fence posts. I must admit, I am surprised at how much work goes into this part of the project. It’s not only physically demanding, but is also a game of numbers and measuring. Setting the foundation is the key to a successful, flat patio… so I have learned. (Note to self: Patience is a virtue).
Here are some progress photos thus far…
![]() |
| An Instagram post from our first weekend at it. |
![]() |
| An Instagram of Nick layout the retaining wall. |
![]() |
| My driveway has been taken over. It’s still like this after 2 weeks. |
![]() |
| Prepping for the fence post cement pours. |
![]() |
| Beginning of the tampering for the patio. |
![]() |
| Grading…still… |
![]() |
| The mess of the yard behind the patio. |








